A projekt
A projekt
Az I. világháború után Magyarországra, mint vesztes országra rákényszerített, 1920. június 4-i trianoni békeszerződés budapesti, Szabadság téri központi emlékművét 1945-ben felszámolták. A történelmi eseményre való emlékezést tabusító évtizedeket követően központi emlékmű nem létesült, a Szabadság téri emlékhely rekonstrukciója pedig az ott államközi egyezmény alapján fenntartott szovjet emlékmű miatt nem lehetséges. Egy új emlékhely létesítésének gondolata a békeszerződés aláírásának 100. évfordulójához közeledve merült fel, majd az 1372/2018. (VIII. 13.) Korm. határozat rendelkezett az Alkotmány utca Kossuth Lajos térbe torkolló szakaszának felszíni rendezéséről, és a történelmi Magyarország 1913. évi összeírás szerinti helységneveinek feltüntetését magában foglaló Emlékhely létesítéséről.
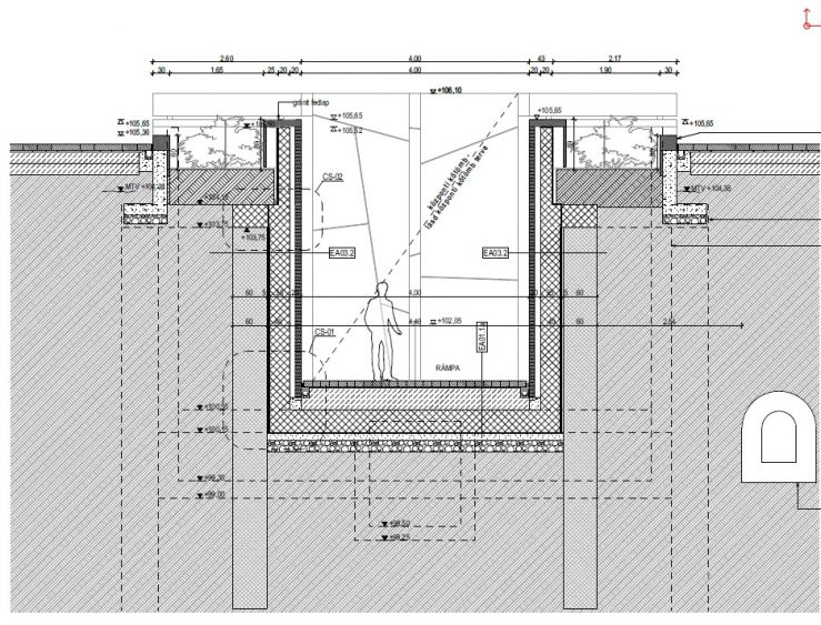
A 2020. augusztus 20-án átadott Emlékhely a Kossuth Lajos tér folytatásának tekinthető. A kiterjesztett gyalogos zóna andezit díszburkolata, a függőleges falak és a központi tömb gránitja, valamint az utcabútorok is a téren használtakkal azonosak. A kortárs építészeti és tájépítészeti eszközökkel kialakított – a felszínből alig kiemelkedő – Emlékhely egy száz méter hosszú, a Kossuth Lajos tér felől lejtő négy méter széles sétány, amelynek két oldalfalára a történelmi Magyar Királyság 12.485 településnevét vésték. A Honvéd utca kereszteződésénél a sétány eléri az ötméteres mélységet. Itt van az Emlékhely szíve, egy körbejárható, hét hatalmas szegmensből álló, meghasadt gránittömb, közepén égő öröklánggal, amely a szegmensek közötti réseken keresztül látható. Az Emlékhellyel párhuzamosan az évfordulóra sor került az Országház történelmi magyar vármegyei és városi címereket tartalmazó épületdíszítő címerpajzsinak tartalmi megújítására is, amelynek során a 20. századi felújítások által némileg összekevert címerek rendezése révén tovább 128 új, határon inneni és határon túli települési címer került fel a homlokzatra.
Partnerek
Koncepció: Wachsler Tamás
Tervezők: ZED Építész Stúdió
Tájépítészet: S73 Tervező Iroda Kft.
Építészeti terv: UVATERV Zrt.
Kivitelező: Market Építő Zrt.







